
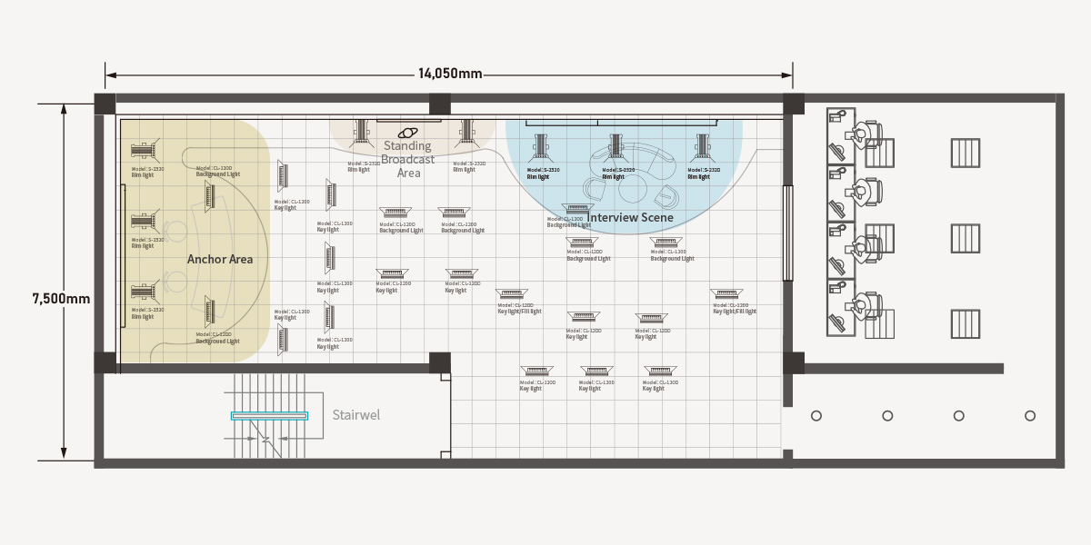
Recently, the SWIT Lighting Engineering Department successfully completed a lighting project for the integrated media center studio in Nanling County, Wuhu, Anhui, with a total area of 105 square meters. It is a large studio equipped with various scenes and facilities. This highly customized studio has a ceiling height of 3.7 meters, divided into three distinct areas: the anchor area, the standing broadcast area, and the interview area, providing the media center with a diverse range of shooting and production scenes.
The Lighting Design Diagram

To ensure the studio's lighting effects are optimal, the SWIT Lighting Engineering Department utilized 20 SWIT 120W studio panel lights and 8 SWIT 100W studio fresnel lights. These advanced lighting fixtures not only provide highly uniform light but also boast excellent color reproduction, creating outstanding visual effects in the studio and ensuring each scene presents the best image quality.
The 3D Design Image



The On-Site Installation


The Final Delivery




To better meet the user's lighting adjustment needs, SWIT also installed with the 96 channels zero threshold lighting console. This intelligent lighting control solution not only improves the precision of lighting adjustments but also makes operations more convenient, offering more possibilities for the studio's practical application.






The light fixtures used in this case:
120W 2:1 Bi-color SMD LED panel light
100W Bi-color Fanless Studio Fresnel Light
48-ch DMX512 Light Console




